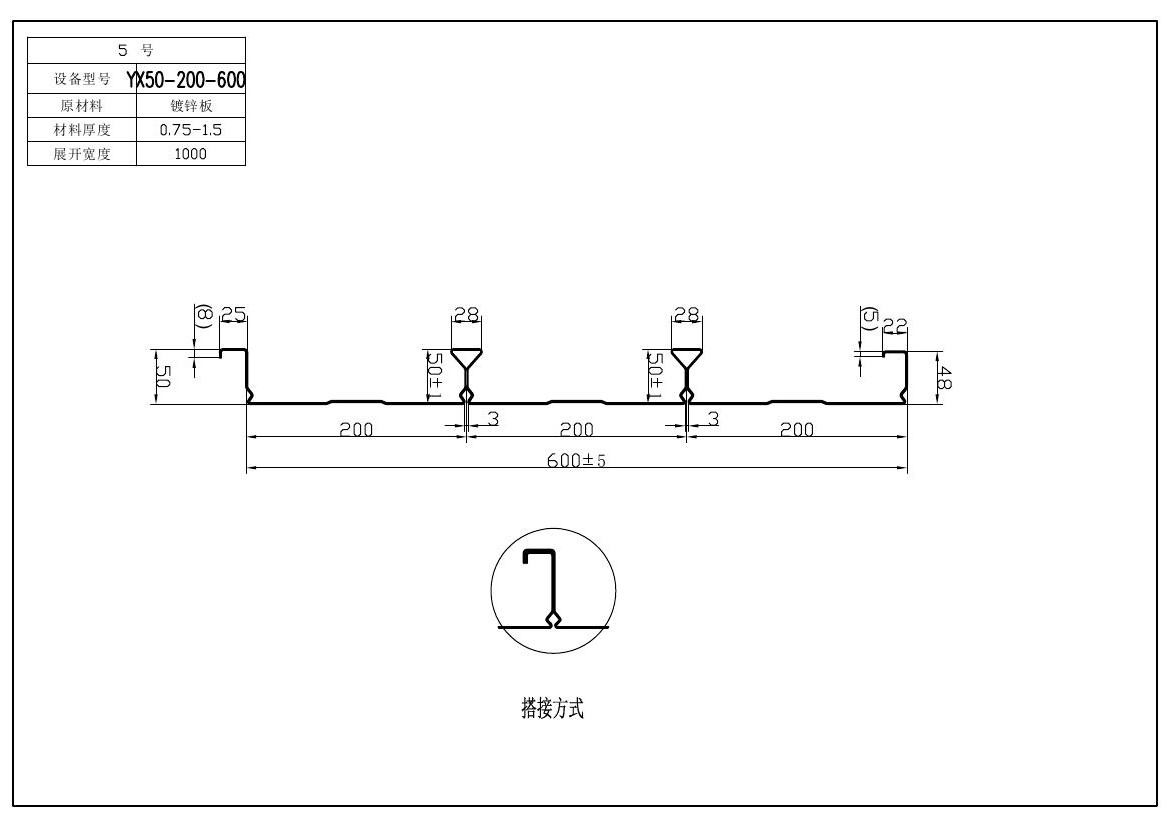
閉口樓承板的主要結構特征
在上文中小編為您講述了什么是組合樓承板,接下來小編想跟各位聊一聊閉口樓承板的主要結構特征。
閉口樓承板是一種更為先進的復合樓承板系統,經實驗證實比其他開口型樓承板系統更具強大的承載力和抗剪力。閉口型肋形的特殊設計,讓鋼承板的板肋完全被混凝土裹護,如同現澆板里的鋼筋,從面能夠大限度的發揮鋼-混凝土各自的特性,成功應用于受力配筋的樓承板系統中,并有好的耐火性能。


它的重量輕、強度高、承重大、抗震性好;施工簡單快捷、拼裝方便;取代傳統模板、改善傳統模板缺點;可作為結構強度的一部分、減低材料成本;易于配筋、配線、配管之施工;外觀整潔美觀。
下一篇:組合樓承板的受力性能
上一篇:樓承板在現代建筑中的地位”
聯系海逵
無錫海逵樓承板是專業樓承板廠家,提供開、縮、閉口樓承板、壓型鋼板、鋼筋桁架樓承板、鋁鎂錳板及CZ型鋼,廠家直銷,價格優惠!

